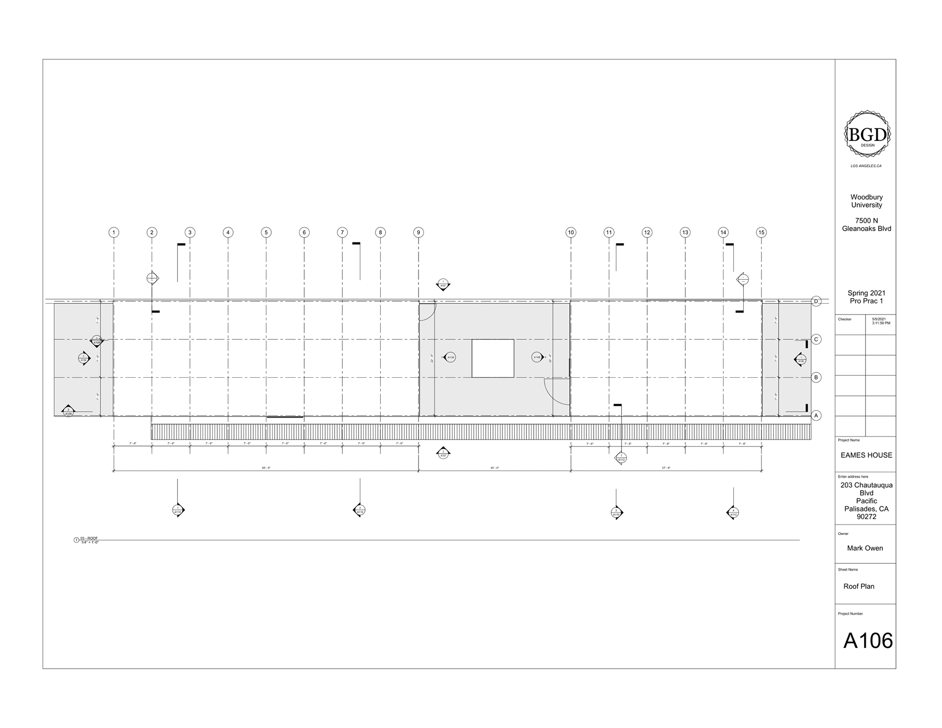
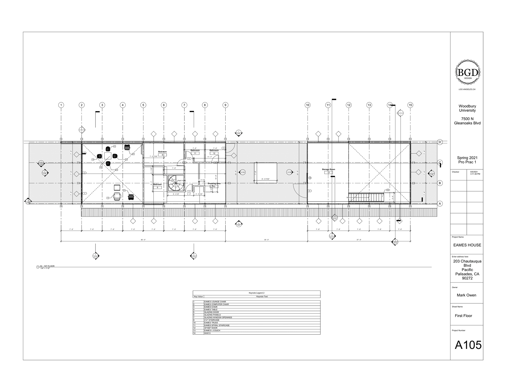
This project focused on the study, documentation, and digital reconstruction of the Eames House (Case Study House No. 8), designed by Charles and Ray Eames in 1949. The objective was to faithfully recreate the residence using Revit, highlighting its architectural ingenuity and structural clarity while translating mid-century modern design into a digital model suitable for professional presentation.
Through extensive research and analysis of drawings, photographs, and historical documentation, the Eames House was modeled to scale with accurate material representation, spatial organization, and construction detail. The process emphasized the modular steel frame system, industrial materials, and open-plan design that embody the ideals of the Case Study House program.
The presentation was developed as if proposing the project to a client or city review board, incorporating site context, structural detailing, and material specifications that demonstrate compliance, constructability, and design intent. This exercise not only honored the original vision of Charles and Ray Eames but also bridged architectural history with modern BIM technology—translating a timeless precedent into a contemporary digital language.
Location : Pacific Palisades, California
Instructor : Mark Owen
Software : Revit, Adobe InDesign
Back to Top